Small Farmhouse Plans Ideas That Bring Warmth and Charm
There’s something deeply comforting about the thought of a farmhouse tucked into a quiet countryside. The creak of wooden floors, the warmth of a wide front porch, and the soft glow of natural light spilling through large windows, it’s a lifestyle that feels grounded, simple, and filled with heart. Small farmhouse plans ideas have become one of the most loved ways to create a home today, not just for people in rural areas, but also for those who crave comfort and simplicity in busy towns and suburbs.
What makes small farmhouse plans so special is that they blend classic rustic charm with modern needs. They provide enough room to live comfortably without being overwhelming or expensive to maintain. For women designing homes that reflect coziness, warmth, and practicality, these ideas can serve as a guiding light. Every choice from layout to finishes can create a personal sanctuary where life slows down, and every corner tells a story.
Let’s walk through inspiring small farmhouse plan ideas that not only make a home beautiful but also practical, timeless, and full of character.
7 Small Farmhouse Plans Ideas
Grassy Hill Road | 2 Bedroom Country Cottage Style House
Source – thehousedesigners
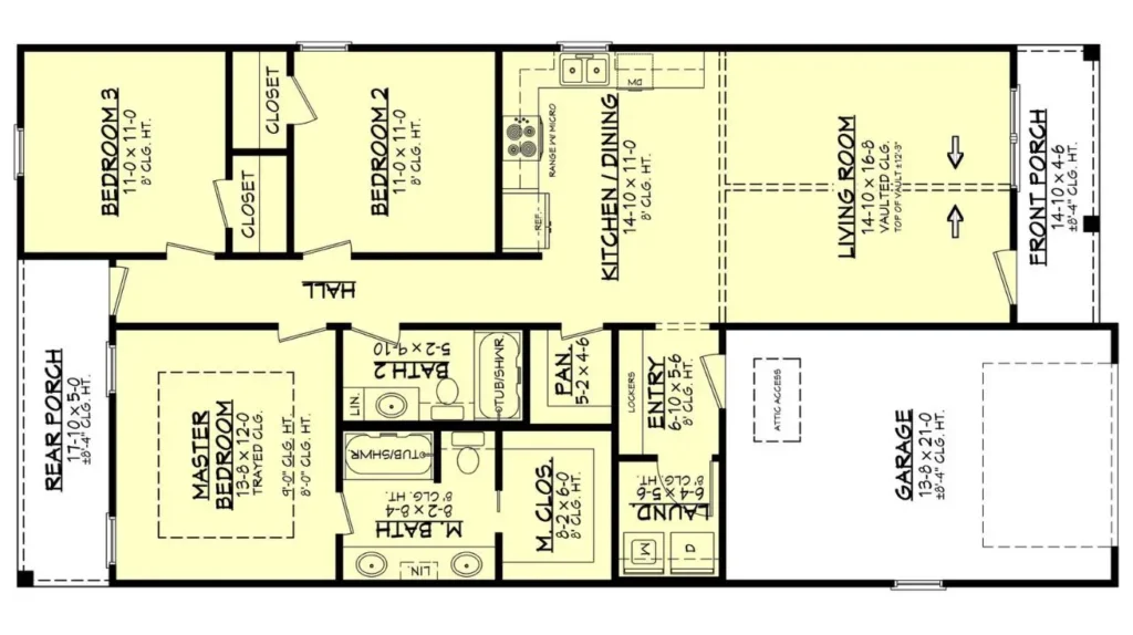
Farmhouse Style, 2578 Sq Ft, 4 Bed, 4 Bath
Source – familyhomeplans
Red Maple Charming Cottage Style House
Source – thehousedesigners
1292 sq ft, 3 Bed, 2 Bath, 1 Floor, 1 Garage
Source – houseplans
Farmhouse Floor Plan is 1552 sq ft, 3 Bedrooms, and 2 Bathrooms
Source – floorplans
1645sq ft 3 Beds, 2 Baths, 1 Floor and 2 Garages
Source – floorplans
800 sq ft Plan,2 Beds, 1 Bathroom, and 1Floors
Source – floorplans
Open Concept Living for Connection

One of the most loved features in small farmhouse plans is the open-concept living area. Instead of having a boxed-in kitchen, dining, and living room, walls are minimized to create one flowing, welcoming space. This design brings people together. While preparing meals, conversations continue across the room, and laughter fills every corner.
This style works beautifully for women who love to host family gatherings or casual dinners with friends. The heart of the home feels alive because everything is connected. Open-concept layouts also make a small farmhouse appear larger and brighter. The natural light bounces across the entire space, and there’s always a sense of warmth.
Adding farmhouse-inspired touches like exposed beams, shiplap walls, and wide-plank wooden floors can enhance the rustic character. At the same time, simple, neutral colors like whites, grays, and soft creams keep the space calm and cozy.
Read – Combined Living and Dining Room
Cozy Front Porch for Welcoming Moments

No small farmhouse plan feels complete without a cozy front porch. This detail is not just architectural, it’s emotional. The porch is where morning coffee tastes better, where children play safely, and where neighbors stop by for a chat. It creates a sense of belonging.
Even the smallest farmhouse design can accommodate a front porch. A covered porch with wooden railings, rocking chairs, and hanging flower baskets turns into a timeless statement. It adds instant curb appeal and sets the tone for the home before anyone even steps inside.
Women who dream of slow evenings with a blanket, a cup of tea, and the soft chirp of crickets outside will find that this feature brings daily comfort. It’s a little slice of country life, even if the farmhouse is built in the middle of a suburban neighborhood.
Functional Farmhouse Kitchens

The kitchen is often called the soul of a farmhouse. In small farmhouse plans, kitchen design focuses on practicality while keeping a warm, homelike atmosphere. Think wide countertops for meal prep, deep farmhouse sinks for easy cleaning, and plenty of cabinets for storage.
An island in the middle of the kitchen doubles as a workspace and a gathering spot. Friends can sit around it while meals are being prepared, and kids can use it for homework or crafts. White cabinets paired with natural wood accents create a balance between bright and rustic.
Farmhouse kitchens often showcase open shelving, where everyday dishes and cookware are displayed in a simple yet stylish way. Add vintage-inspired lighting fixtures, and the space turns into the heart of the home, a place where meals and memories are made.
Smart Small Space Bedrooms

Designing bedrooms in small farmhouse plans requires creativity. The goal is to create cozy retreats that feel restful without being cramped. Built-in storage solutions, such as under-bed drawers or wall shelving, help maximize space while reducing clutter.
Natural fabrics like cotton and linen bring a soft, breathable touch to farmhouse bedrooms. Wooden headboards, woven rugs, and neutral palettes keep the atmosphere soothing. A touch of greenery, such as potted plants, adds life and freshness.
A farmhouse bedroom isn’t just about sleeping; it’s about peace. For women seeking a personal retreat after a long day, these rooms offer warmth and comfort. Even in small spaces, a thoughtful design can turn the bedroom into a private sanctuary.
Rustic Bathrooms with Modern Comforts

Small farmhouse bathrooms balance rustic beauty with everyday convenience. Classic elements like clawfoot tubs, sliding barn doors, and wood-framed mirrors bring farmhouse charm. But they’re combined with modern comforts such as walk-in showers, smart storage, and efficient layouts.
A neutral color palette with touches of natural stone or wood helps keep the bathroom grounded. Woven baskets, open shelving, and antique-style faucets create an authentic farmhouse feel. Even in a small floor plan, a bathroom can become a soothing escape.
For women who value both function and style, this mix ensures that the bathroom is not just practical but also filled with charm.
Mudrooms for Everyday Ease

Life gets messy, but small farmhouse plans often include a mudroom to keep the rest of the home clean and organized. A mudroom is a transitional space near the entrance where shoes, coats, and bags can be stored.
Adding built-in benches, cubbies, and hooks makes it functional and family-friendly. This detail keeps clutter under control while adding character. Decorate the mudroom with rustic signs, woven baskets, and wooden accents to keep it aligned with the farmhouse theme.
It’s a small feature, but it makes a big difference in how smooth daily life feels. Women managing busy households will find this space to be a lifesaver.
Warm and Welcoming Fireplaces

Nothing says farmhouse living like gathering around a fireplace. Even in small farmhouse plans, including a fireplace in the living room creates a centerpiece that draws everyone in. Whether it’s a classic stone fireplace or a modern shiplap surround, the effect is always cozy.
The fireplace is more than a source of warmth; it’s a symbol of togetherness. On cold evenings, families can gather here, share stories, and enjoy the glow of the fire. Women who love to create meaningful family traditions will treasure this feature.
Decorating the mantel with vintage finds, framed photos, or seasonal touches makes the fireplace an ever-changing part of the home’s personality.
Loft Spaces for Extra Charm
One of the clever design solutions in small farmhouse plans is adding loft spaces. A loft can serve as a guest room, reading nook, home office, or playroom for kids. It makes use of vertical space, which is perfect when the floor plan is limited.
A loft with exposed wooden beams and railings feels charming and whimsical. It also gives the farmhouse character that sets it apart from standard small homes. For women who need flexibility, lofts are a perfect way to adapt as family needs change over time.
Outdoor Living Spaces

The farmhouse lifestyle isn’t just about the inside of the home; it flows outside, too. Small farmhouse plans often extend the living space with outdoor areas such as patios, decks, or back porches.
Outdoor dining areas, fire pits, and gardens add to the home’s charm. A small farmhouse with even a modest yard can feel expansive when the outdoors is designed thoughtfully. Women who enjoy gardening, outdoor entertaining, or simply unwinding under the stars will find these spaces irresistible.
- Easter Sunday Church Decorations That Will Transform Your Worship Space - March 29, 2026
- Living Hall Painting Ideas That Instantly Transform Your Space - March 27, 2026
- Pink and Green Bedroom Ideas That Instantly Transform Your Space - March 25, 2026




















